|
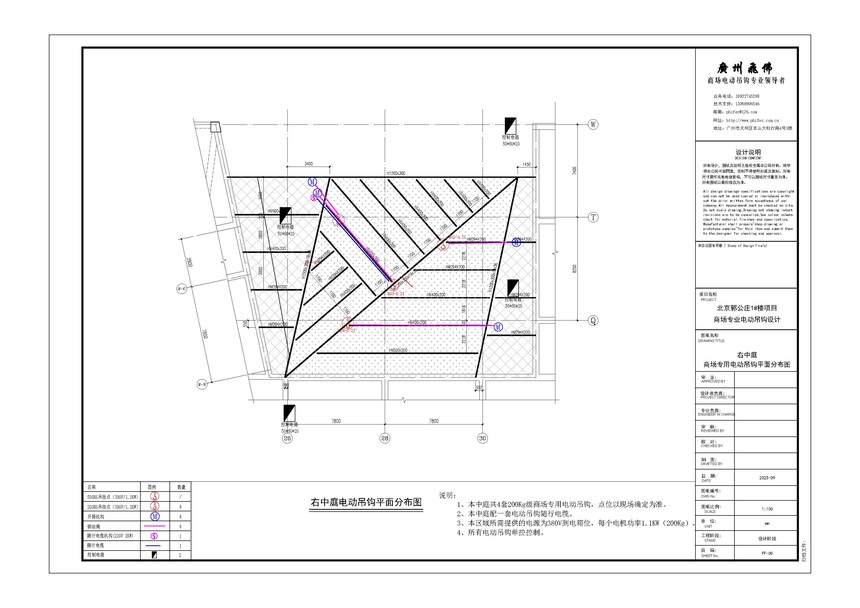
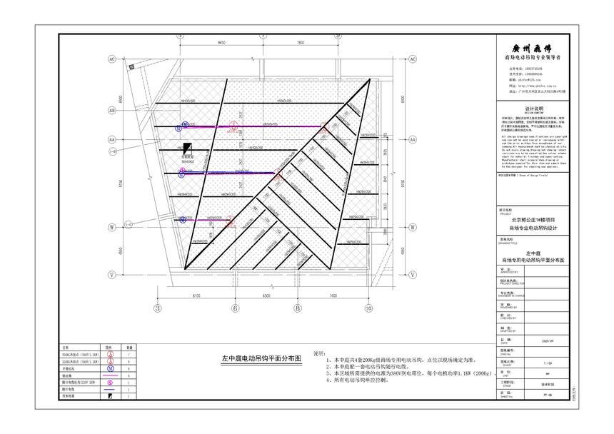
承建北京中海康养·锦宸电动吊钩工程本项目是中海地产在北京郭公庄的一个康养大楼中庭电动吊钩项目。 本项目共分两个中庭,每套中庭安装4套专业商场电动吊钩及一套电动吊钩随行电缆,共计8套专业商场电动吊钩及2套电动吊钩随行电缆。
本公司专业承建各式电动窗帘、电动天棚帘、商场电动吊钩、商场电动葫芦、商场电动挂点,商场电动吊钩随行电缆、电动开启窗、电动开合屋面等,欢迎咨询。业务咨询电话:18922745288,技术咨询电话:13068806546 |
18922745288
服务热线
设计、生产、安装
一体化企业
|
承建北京中海康养·锦宸电动吊钩工程本项目是中海地产在北京郭公庄的一个康养大楼中庭电动吊钩项目。 本项目共分两个中庭,每套中庭安装4套专业商场电动吊钩及一套电动吊钩随行电缆,共计8套专业商场电动吊钩及2套电动吊钩随行电缆。
本公司专业承建各式电动窗帘、电动天棚帘、商场电动吊钩、商场电动葫芦、商场电动挂点,商场电动吊钩随行电缆、电动开启窗、电动开合屋面等,欢迎咨询。业务咨询电话:18922745288,技术咨询电话:13068806546 |